Compare Properties

You can compare only 4 properties
Compare Reset
Realteo.pl
  • Home
    • Home 1
    • Home 2
    • Home 3
    • Home 4
    • Home 5
    • Home 6
  • Listings
    • List Layout
      • With Sidebar
      • With Map
      • Full Width
    • Grid Layout
      • Standard With Sidebar
      • Compact With Sidebar
      • With Map
      • Full Width
    • Half Screen Map
      • List Layout
      • Grid Standard Layout
      • Grid Compact Layout
  • Features
    • Plans and Pricing
    • Single Properties
    • Search Styles
      • Sidebar Search
      • Advanced Search
      • Home Search 1
      • Home Search 2
      • Home Search 3
    • My Account
      • My Profile
      • Bookmarked Listings
      • My Properties
      • Submit Property
      • Change Password
    • Agents
      • Agents List
      • Agent Profile
    • Agencies
      • Agencies List
      • Agency Page
  • Pages
    • Blog
      • Blog
      • Single Blog Post
    • Contact
    • Elements
    • Typography
    • Icons
Log In / Register Submit Property

Lokal mieszkalny z usługami BEZPOŚREDNIO bez PCC

mazowieckie, Prażmów, Ustanów
995 996zł
7323zł / m²
  • 835 718 ID
  • m² 136
  • L. Pomieszczeń 6
  • Harmonia Ustanów Kontakt
  • 575 490 977 Nr Telefonu
  • sprzedaż Transakcja
  • 2 026 Rok budowy
  • bliźniak Rodzaj

Description

Oferujemy sprzedaż lokalu mieszkalnego, z częścią usługową w parterze, z ogrodem, niezależnym wjazdem i wejściem. Na piętrze salon połączony z aneksem kuchennym, 2 sypialnie, łazienka oraz garderoba. Poddasze nieużytkowe do własnego zagospodarowania.

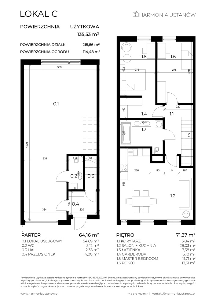
Powierzchnia użytkowa – 135,53 m²
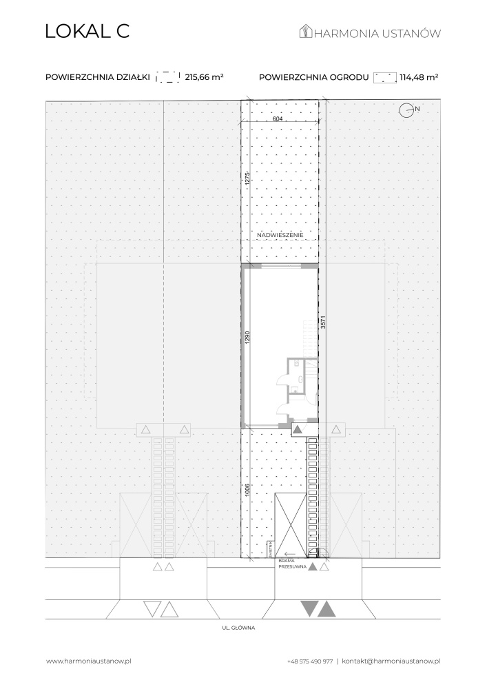
Powierzchnia działki- 215 m²

PARTER 64,16 m²
– LOKAL USŁUGOWY 54,69 m²
– WC 3,12 m²
– HALL 2,35 m²
– PRZEDSIONEK 4,00 m²

PIĘTRO 71,37 m²
– KORYTARZ 5,84 m²
– SALON + KUCHNIA 28,03 m²
– ŁAZIENKA 7,38 m²
– GARDEROBA 5,10 m²
– MASTER BEDROOM 11,71 m²
– POKÓJ 13,31 m²

UDOGODNIENIA:
• Master Bedroom z garderobą i łazienką
• Przesuwne okna tarasowe
• Przestronna łazienka
• Własny ogród
• Wysokie pomieszczenia (2,8 m w parterze i 2,7 m na piętrze) oraz okna (2,5 m)
• Pokoje bez skosów
• Poddasze (ok.56 m2 nie wliczone w metraż)

Zlokalizowane w otulinie Lasów Chojnowskich, w pobliżu pełna infrastruktura, sklepy, szkoły, przedszkola, apteki, przychodnia, przystanek bus i pkp (2 strefa ZTM Warszawa), atrakcje sportowe, turystyczne i rozrywkowe.

• Dino 190m;
• Żabka 500m;
• Piekarnia 125m;
• Szkoła podstawowa 470m;
• Przedszkole 500m;
• Apteka i przychodnia 250m;
• Las Chojnowski 600m;

Zadbaliśmy o estetyczny, nowoczesny wygląd budynku stawiając na trwałe i naturalne materiały. Ściany z pełnej cegły silikatowej, doskonałe akustycznie i konstrukcyjnie, produkowanej bez wypalania (nie promieniuje), z naturalnych surowców (wapń, piasek, woda).

Zastosowaliśmy czystą formę jasnych elewacji przełamanych ciepłym odcieniem drewna. Połączenie funkcjonalności i estetyki było naszym priorytetem.

ASPEKTY TECHNICZNE:
Oferujemy lokale w standardzie deweloperskim, ale możliwe jest również wykończenie ‘pod klucz’.
Budujemy z solidnych, sprawdzonych materiałów, w trwałej tradycyjnej technologii murowanej i żelbetowej. Dach skośny w konstrukcji drewnianej, na fragmentach stropodach żelbetowy z zielenią.
Budynek przygotowany jest do zastosowania powszechnie stosowanych źródeł ciepła, czyli gazu, pompy ciepła, rekuperacji czy fotowoltaiki z magazynem energii oraz ładowarki EV.
Każdy lokal posiada niezależny wjazd z furtką, miejsce parkingowe oraz ogrodzony ogród.

O NAS
Jesteśmy firmą z wieloletnim doświadczeniem zdobytym przy projektach deweloperskich na terenie Warszawy i w okolicach.
Łączymy doświadczenie architektoniczne i wiedzę budowlaną z pasją do tworzenia estetycznych rozwiązań. W naszym zespole pracują osoby charakteryzujące się dużym dorobkiem projektowym, wykonawczym i inwestycyjnym. Doświadczenie zdobyliśmy współpracując z partnerami inwestycyjnymi, deweloperami, podwykonawcami, biurami projektów jak i doradcami technicznymi przy przygotowaniu oraz realizacji inwestycji mieszkaniowych.

Zapraszamy do zapoznania się z inwestycją na naszej stronie harmoniaustanow.pl oraz do kontaktu telefonicznego.

+48 575 490 977

w w w . h ar m o n i a u s t a n o w .p l

Details

  • Building Age: 2026

Features

  • bliźniak
  • piętro: /
  • rynek:

Similar Properties

Featured
2 390 000zł 9637zł / m²

Przestronny dom w wysokim standardzie

mazowieckie, Jedlnia-Letnisko, Jedlnia-Letnisko Details
  • 835 712 ID
  • m² 248
  • L. Pomieszczeń 6
  • 509 561 255 Nr Telefonu
  • sprzedaż Transakcja
  • 2 007 Rok budowy
  • wolnostojący Rodzaj
4 tygodnie ago
Featured
528 000zł 7232zł / m²

Domy od 52 do 152m2 – różny przedział cenowy

mazowieckie, Ciechanów, Details
  • 831 778 ID
  • m² 73
  • L. Pomieszczeń 4
  • Biuro Kontakt
  • 796 100 703 Nr Telefonu
  • sprzedaż Transakcja
  • 2 025 Rok budowy
  • wolnostojący Rodzaj
4 tygodnie ago
Featured
2 250 000zł 7500zł / m²

Sprzedaż domu wolnostojącego

mazowieckie, Raszyn, Falenty Nowe Details
  • 834 173 ID
  • m² 300
  • L. Pomieszczeń 8
  • Karolina Kontakt
  • 795 055 275 Nr Telefonu
  • sprzedaż Transakcja
  • 1 999 Rok budowy
  • wolnostojący Rodzaj
5 miesięcy ago

Featured Properties

Featured
Wynajmę kawalerkę w Bydgoszczy1 850zł
  • 835 932 ID
  • m² 20
  • L. Pomieszczeń 1
  • Karolina Kontakt
  • 666 520 711 Nr Telefonu
  • wynajem Transakcja
  • 5 Liczba pięter
  • 2 022 Rok budowy
  • Nowe budownictwo Rodzaj
Featured
Kawalerka na parterze. Niskie koszty utrzymania218 800zł
  • 835 933 ID
  • m² 30
  • L. Pomieszczeń 1
  • Radek Kontakt
  • 737 729 255 Nr Telefonu
  • sprzedaż Transakcja
  • 3 Liczba pięter
  • 1 958 Rok budowy
  • Blok Rodzaj
Featured
Sprzedam apartament 40m w Pucku549 000zł
  • 835 934 ID
  • m² 40
  • L. Pomieszczeń 2
  • Jolanta Sapierów Kontakt
  • 604 458 067 Nr Telefonu
  • sprzedaż Transakcja
  • 3 Liczba pięter
  • 2 019 Rok budowy
  • Blok Rodzaj
Featured
| bezpośrednio | wysoki standard | garderoba |798 000zł
  • 835 935 ID
  • m² 47
  • L. Pomieszczeń 3
  • 883 666 603 Nr Telefonu
  • sprzedaż Transakcja
  • 4 Liczba pięter
  • 1 972 Rok budowy
  • Blok Rodzaj
Featured
Dom do remontu w dzielnicy Ogrodów, 151 m², garaż1 029 000zł
  • 835 936 ID
  • m² 90
  • L. Pomieszczeń 5
  • +48 696 762 764 Nr Telefonu
  • sprzedaż Transakcja
  • 1 938 Rok budowy
  • bliźniak Rodzaj
Featured
Gotowe Do Wprowadzenia | Po Remoncie | z Garderobą677 000zł
  • 835 924 ID
  • m² 39
  • L. Pomieszczeń 2
  • 579 905 154 Nr Telefonu
  • sprzedaż Transakcja
  • 1 Piętro
  • 3 Liczba pięter
  • Blok Rodzaj
Featured
Szczecin Wojska Polskiego 2 pokoje319 000zł
  • 835 930 ID
  • m² 33
  • L. Pomieszczeń 2
  • FHU Solid House Kontakt
  • 48 698 672 112 Nr Telefonu
  • sprzedaż Transakcja
  • 11 Piętro
  • 11 Liczba pięter
  • 1 972 Rok budowy
  • Wieżowiec Rodzaj
Featured
Działka z widokiem na panorame gór, Lipowa, Żywiec240 000zł
  • 835 779 ID
  • m² 968
  • Edyta Samborska Kontakt
  • 503 589 657 Nr Telefonu
  • sprzedaż Transakcja
  • budowlana Rodzaj
Featured
SEGMENT W CICHEJ, SPOKOJNEJ I ZIELONEJ OKOLICY1 365 000zł
  • 835 663 ID
  • m² 126
  • L. Pomieszczeń 4
  • 732 716 164 Nr Telefonu
  • sprzedaż Transakcja
  • 2 020 Rok budowy
  • szeregowiec Rodzaj
Featured
2 pokoje, Stara Ochota, winda, ul. Grójecka 70710 000zł
  • 835 469 ID
  • m² 47
  • L. Pomieszczeń 2
  • Wioletta Jankowska Kontakt
  • 509 368 117 Nr Telefonu
  • sprzedaż Transakcja
  • 3 Piętro
  • 6 Liczba pięter
  • 1 956 Rok budowy
  • Blok Rodzaj

Findeo

Morbi convallis bibendum urna ut viverra. Maecenas quis consequat libero, a feugiat eros. Nunc ut lacinia tortor morbi ultricies laoreet ullamcorper phasellus semper.

Helpful Links

  • Plans and Pricing
  • Contact

Contact Us

12345 Little Lonsdale St, Melbourne
Phone: (123) 123-456
E-Mail: office@example.com

© Theme by Purethemes.net. All Rights Reserved.