Compare Properties

You can compare only 4 properties
Compare Reset
Realteo.pl
  • Home
    • Home 1
    • Home 2
    • Home 3
    • Home 4
    • Home 5
    • Home 6
  • Listings
    • List Layout
      • With Sidebar
      • With Map
      • Full Width
    • Grid Layout
      • Standard With Sidebar
      • Compact With Sidebar
      • With Map
      • Full Width
    • Half Screen Map
      • List Layout
      • Grid Standard Layout
      • Grid Compact Layout
  • Features
    • Plans and Pricing
    • Single Properties
    • Search Styles
      • Sidebar Search
      • Advanced Search
      • Home Search 1
      • Home Search 2
      • Home Search 3
    • My Account
      • My Profile
      • Bookmarked Listings
      • My Properties
      • Submit Property
      • Change Password
    • Agents
      • Agents List
      • Agent Profile
    • Agencies
      • Agencies List
      • Agency Page
  • Pages
    • Blog
      • Blog
      • Single Blog Post
    • Contact
    • Elements
    • Typography
    • Icons
Log In / Register Submit Property

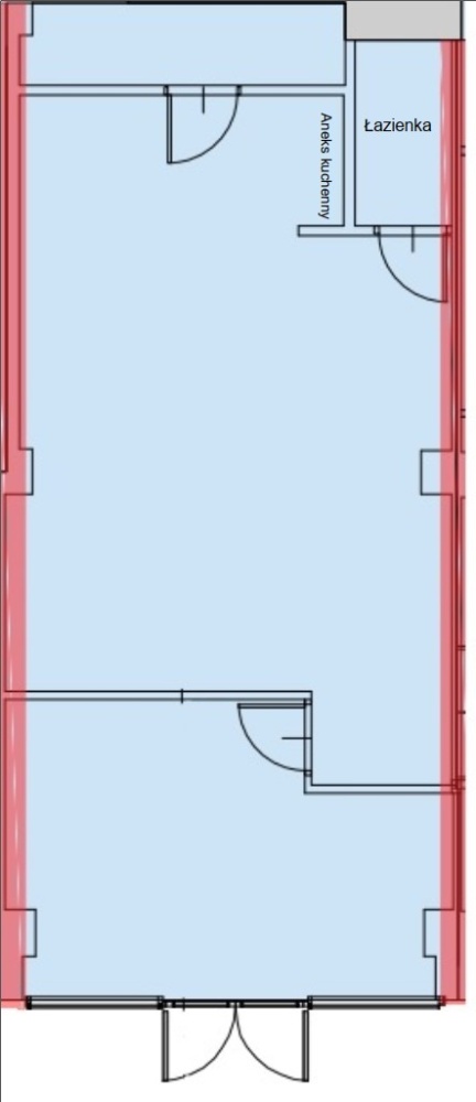
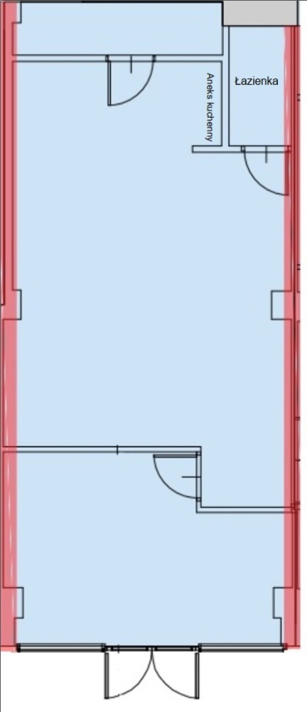
Lokal biurowo-usługowy na parterze

małopolskie, Kraków, Podgórze
5 915zł
78zł / m²
  • 832 795 ID
  • m² 75
  • L. Pomieszczeń 4
  • Leasing Manager Kontakt
  • 604 924 390 Nr Telefonu
  • wynajem Transakcja
  • 1 Liczba pięter

Description

Wynajem bezpośrednio od właściciela, bez pośrednika, bez prowizji.

Do wynajęcia lokal biurowo-usługowy o powierzchni 75,37 m2, zlokalizowany na parterze biurowca na ul. Wadowickiej 6. Wejście do lokalu bezpośrednio z zewnątrz. Całość składa się z trzech pomieszczeń i toalety.

Udogodnienia:
– wygodny dojazd MPK
– możliwość wynajęcia miejsc parkingowych
– ochrona + monitoring nieruchomości
– sprzątanie części wspólnych
– odśnieżanie chodników i parkingów
– infrastruktura teleinformatyczna
– recepcja
– w budynku sklep spożywczy, drogeria, apteka, przychodnia Lux Med, sklep komputerowy, poczta, siłownia, przedszkole

Pow. 75,37 m2
Czynsz: 13,50 EUR/m2 + opłata eksploatacyjna: 21,50 PLN/m2
Długość umowy: minimum 1 rok, maksymalnie do końca 2028 roku.

Lokal dostępny od zaraz.

Features

  • piętro: 0/1
  • rynek:

Similar Properties

Featured
1 250zł 10zł / m²

TANIO, ocieplony magazyn, regały/stoły, toaleta

małopolskie, Kraków, Nowa Huta Details
  • 833 708 ID
  • m² 125
  • L. Pomieszczeń 1
  • Piotr Turczyński Kontakt
  • 692 032 156 Nr Telefonu
  • wynajem Transakcja
  • 1 Piętro
  • 2 Liczba pięter
3 dni ago
Featured
6 890zł 81zł / m²

Lokal biurowo-usługowy na parterze

małopolskie, Kraków, Podgórze Details
  • 835 032 ID
  • m² 85
  • L. Pomieszczeń 6
  • Leasing Manager Kontakt
  • 604 924 390 Nr Telefonu
  • wynajem Transakcja
  • 1 Liczba pięter
1 tydzień ago
Featured
16 500zł 58zł / m²

Budynek wolnostojący 280m2 Półłanki do Wynajęcia

małopolskie, Kraków, Podgórze Details
  • 826 072 ID
  • m² 280
  • L. Pomieszczeń 2
  • 509 756 960 Nr Telefonu
  • wynajem Transakcja
  • 1 Piętro
  • 1 Liczba pięter
  • lokal użytkowy Rodzaj
2 miesiące ago

Featured Properties

Featured
Gotowe Do Wprowadzenia | Po Remoncie | z Garderobą677 000zł
  • 835 924 ID
  • m² 39
  • L. Pomieszczeń 2
  • 579 905 154 Nr Telefonu
  • sprzedaż Transakcja
  • 1 Piętro
  • 3 Liczba pięter
  • Blok Rodzaj
Featured
Szczecin Wojska Polskiego 2 pokoje319 000zł
  • 835 930 ID
  • m² 33
  • L. Pomieszczeń 2
  • FHU Solid House Kontakt
  • 48 698 672 112 Nr Telefonu
  • sprzedaż Transakcja
  • 11 Piętro
  • 11 Liczba pięter
  • 1 972 Rok budowy
  • Wieżowiec Rodzaj
Featured
Wynajmę kawalerkę w Bydgoszczy1 850zł
  • 835 932 ID
  • m² 20
  • L. Pomieszczeń 1
  • Karolina Kontakt
  • 666 520 711 Nr Telefonu
  • wynajem Transakcja
  • 5 Liczba pięter
  • 2 022 Rok budowy
  • Nowe budownictwo Rodzaj
Featured
Kawalerka na parterze. Niskie koszty utrzymania218 800zł
  • 835 933 ID
  • m² 30
  • L. Pomieszczeń 1
  • Radek Kontakt
  • 737 729 255 Nr Telefonu
  • sprzedaż Transakcja
  • 3 Liczba pięter
  • 1 958 Rok budowy
  • Blok Rodzaj
Featured
Sprzedam apartament 40m w Pucku549 000zł
  • 835 934 ID
  • m² 40
  • L. Pomieszczeń 2
  • Jolanta Sapierów Kontakt
  • 604 458 067 Nr Telefonu
  • sprzedaż Transakcja
  • 3 Liczba pięter
  • 2 019 Rok budowy
  • Blok Rodzaj
Featured
| bezpośrednio | wysoki standard | garderoba |798 000zł
  • 835 935 ID
  • m² 47
  • L. Pomieszczeń 3
  • 883 666 603 Nr Telefonu
  • sprzedaż Transakcja
  • 4 Liczba pięter
  • 1 972 Rok budowy
  • Blok Rodzaj
Featured
Dom do remontu w dzielnicy Ogrodów, 151 m², garaż1 029 000zł
  • 835 936 ID
  • m² 90
  • L. Pomieszczeń 5
  • +48 696 762 764 Nr Telefonu
  • sprzedaż Transakcja
  • 1 938 Rok budowy
  • bliźniak Rodzaj
Featured
Działka z widokiem na panorame gór, Lipowa, Żywiec240 000zł
  • 835 779 ID
  • m² 968
  • Edyta Samborska Kontakt
  • 503 589 657 Nr Telefonu
  • sprzedaż Transakcja
  • budowlana Rodzaj
Featured
SEGMENT W CICHEJ, SPOKOJNEJ I ZIELONEJ OKOLICY1 365 000zł
  • 835 663 ID
  • m² 126
  • L. Pomieszczeń 4
  • 732 716 164 Nr Telefonu
  • sprzedaż Transakcja
  • 2 020 Rok budowy
  • szeregowiec Rodzaj
Featured
2 pokoje, Stara Ochota, winda, ul. Grójecka 70710 000zł
  • 835 469 ID
  • m² 47
  • L. Pomieszczeń 2
  • Wioletta Jankowska Kontakt
  • 509 368 117 Nr Telefonu
  • sprzedaż Transakcja
  • 3 Piętro
  • 6 Liczba pięter
  • 1 956 Rok budowy
  • Blok Rodzaj

Findeo

Morbi convallis bibendum urna ut viverra. Maecenas quis consequat libero, a feugiat eros. Nunc ut lacinia tortor morbi ultricies laoreet ullamcorper phasellus semper.

Helpful Links

  • Plans and Pricing
  • Contact

Contact Us

12345 Little Lonsdale St, Melbourne
Phone: (123) 123-456
E-Mail: office@example.com

© Theme by Purethemes.net. All Rights Reserved.